Pages

Sunday, February 6, 2011

Echos of Another Era

I designed this house to blend seemlessly into an established neighborhood. The exterior--a mix of stone, brick, and half timbers, speaks to the sort of homes that were built in the 1930's and 1940's. There is a definite sense of arrival here, with the charming half round front door accented by rusticated stonework. Cast stone door and window surrounds, brick banding at the foundation, and copper guttering and conductor heads are some of the exterior details.


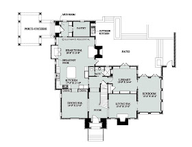
Inside, a traditionally arranged floor plan is mixed with elements and spaces that keep this house current. Formal living and dining rooms flank a foyer with a gently curved stair. The family living spaces are at the rear of the house, a large kitchen with a large island for gathering and food prep, and a comfortable hearth room that is overlooked by a built-in breakfast banquette. A mudroom with generous built-ins provides a spot for dropping off bags, shoes, and coats. And a large walk-in pantry could also be called on to serve as a family computer room. The main floor is rounded out by a handsome library (a built-in murphy bed allows it to serve double-duty as a guest room) and a brick-walled sunroom. Many of the first floor rooms open to the terraces.
Upstairs, a book lined loft is the perfect spot for bedtime stories or a lazy afternoon spent catching up on the latest bestseller. The master suite, with a luxurious spa bathroom and room-sized walk-in closet, is to the left, while two family bedrooms share another bath with walk-in shower on the right. The laundry room is positioned ideally to make clothes-cleaning chores as efficient as possible.


While the house has a small cottage feel from the street, it's actually right at 3500 square feet. And the space over the detached garage could be finished off for even more space. If you're interested in this plan, please contact us!

2 comments:

  1. Thanks for the plan. Can't tell the house without the floor-plan. I love the flared stair, the breakfast nook and the patio that seems cozily enclosed.

    ReplyDelete
  2. Terry, you're welcome. I'm the same way, I need a floor plan to orient myself! I imagine that patio extending into a walled backyard with a dark bottomed pool...

    ReplyDelete